/ Bangkok, Thailand /
/ Story: Kangsadan K. / English version: Bob Pitakwong /
/ Photographs: Nantiya June /
A three-story townhouse nestled in the heart of Bangkok’s downtown tells the story of a family in the good old days. Photographs from 40 years back show Mom and her two daughters, documenting an account of past events in their lives amid change driven by city growth. When it came time to update and make it comfortable and safe for everyone, the homeowner decided to leave it in the good hands of a team of architects to bring it to a good state of repair.

It’s a restoration townhouse project that came at the right time as Mom was getting older. Among others, a lift was installed to make moving easy from one floor to another. The opportune use of the elevator also saved floor space, making the whole house interior feel large, warm and cozy despite being in the middle of a big city.






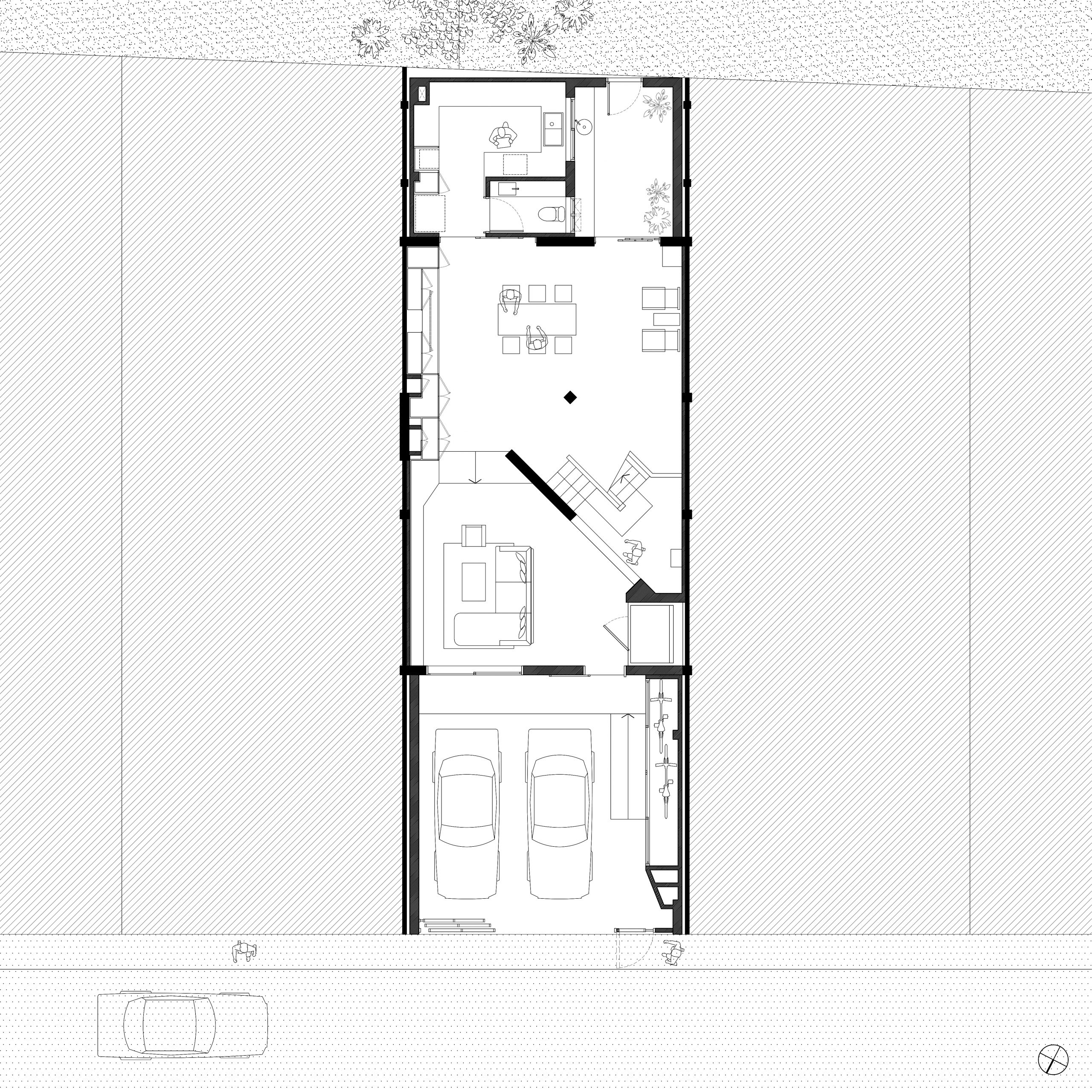
To maintain structural integrity, the renovators make certain that the framework of the split-level townhouse remains intact. The townhouse consists two parts, the front and the rear accessed via an oblique stairwell set at a 45-degree angle in the middle of the house plan. A skylight system built into the rooftop deck lets natural daylight shine through from the uppermost point all the way to the first floor.

The overall strong, well-designed house makes it easy for the architects to make slight adjustments to achieve a perfect fit. The result is a bright and airy interior with spatial arrangements tailored to specific family lifestyle needs. In essence, it’s a design that takes the precaution of safety and comfort for the aging parent.
First things first, the architects searched out the best spot to install the elevator to make sure there is no negative impact on the existing structure of the house. For a more wheelchair-friendly interior, the first floor entrance hall in front of the lift boasts an open plan that’s conveniently connected to the living room and dining room nearby.


Where appropriate, a gently inclined ramp is put in to join two different levels while the room at the rear of the house transforms into a kitchen with a bathroom close by. A few steps away, a wash area feels open and airy, thanks to a volume of space overhead that rises three stories high all the way to the upper covering of the building.


The second floor holds two bedrooms. Mom’s bedroom occupies the front wing of the house while that of the firstborn is tucked away at the rear. The younger daughter’s bedroom is on the third floor directly above that of her sister. All three rooms give a feeling of comfort and relaxation with furniture doubling as room dividers. Mom’s room is more special, thanks to a semi-outdoor gallery protected by a façade of louvered panels.


Together they keep the sitting room cool, well-lit and well-ventilated. By and large, it’s the picture of faux wood slats filling up the angled face of the building. Meanwhile, the two bedrooms at the rear create a sense of connection to nature, as a result of generous openings in the wall letting fresh outdoor air into the home.

A work of outstanding design is evidenced by the storage cabinets built flush with the walls in many parts of the townhouse. The interior living space is light and airy, while warm paint colors paired with vintage wooden furniture make it feel warm and inviting. In a few words, it’s a home characterized by the power of storytelling about strong family bonds. Here, a relationship made in heaven is expressed in a rich, subtle and happy way.
Architects: WOS Architects
This house appears in the special Baan Lae Suan issue on the theme of “Cozy Living in Urban Homes” is out now. Design lovers, this one is for you. It’s the latest in the ongoing “ASEAN Tropical House Series”.
The exciting new bilingual edition (Thai-English) is a nice little collab between the Baan Lae Suan Press and its English language media arm Living ASEAN. It’s the coming together of ideas for dealing with the problem of limited space, turning site constraints into solutions. Precisely, it looks at problem solving techniques, ultimately creating small urban homes that are right within the context of Southeast Asia. In this issue, ten houses are chosen for their exemplary designs that inspire. It’s meant for architects, designers, and homeowners searching out new ideas for creating a living space that’s cozy and comfortable plus it blends in beautifully with the environment.
Available at bookstores nationwide. Or go online. Order now at https://www.naiin.com/product/detail/621643
For bulk international orders, contact livingasean.bkk@gmail.com

You may also like…


















































































































































