/ Kampot, Cambodia /
/ English version: Bob Pitakwong /
/ Photographs: Antoine Raab, Nataly Lee, Bloom Architecture /
A colonial terraced house stands the test of time in a quaint riverside neighborhood in Kampot, a city in southern Cambodia. The house that had previously fallen into disrepair and kept closed for years was recently restored to all its former glory. Beautifully renovated, it transforms into a home-cum-restaurant exuding good vibes. The dining room is downstairs, while the family home is tucked away in a quiet place upstairs. It’s the story of architectural preservation in an area rich in history. Things have changed, people’s lifestyles included.


To make the old house fit for modern living, the design team focused on conserving all distinctive attributes in their existing state. They included, among others, the building façade with large arched openings on the second floor balcony, elaborate ornamentation, and weather-beaten looks on the walls left behind by the passage of time.



Together they chronicled events on a long journey through time. Where suitable, old timber recycled from the old house found a new purpose as part of furniture, while all the windows were built fresh, combining the old with the new.

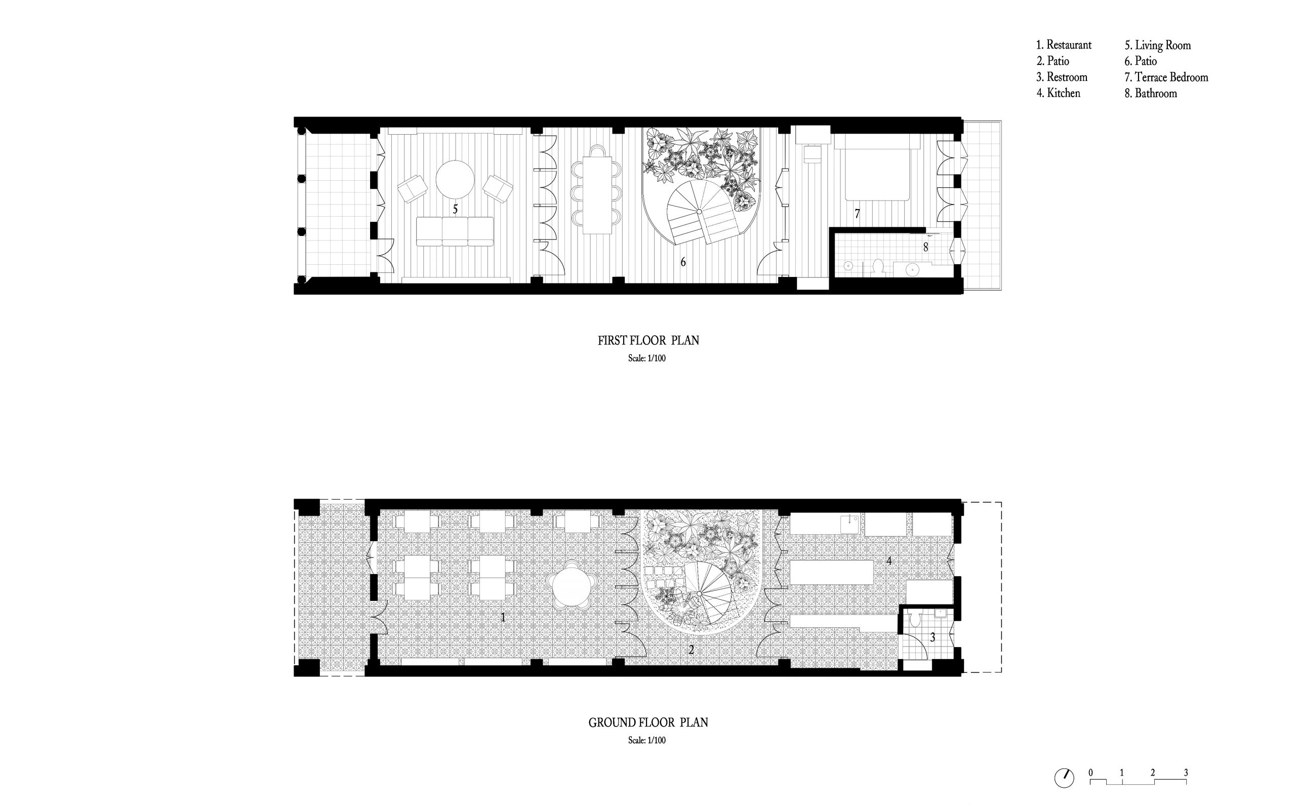
Despite the appearance of a colonial style commercial building, things have changed inside in a way that’s right for modern lifestyle needs. The downstairs dining room is light and airy with plenty of seating available. Wooden tables and chairs come in various shapes and sizes, while exposed wood beam ceilings make the room feel more spacious. Underneath it all, uncovered brick leave textures on walls, whereas the floor is of porcelain tiles showcasing the patterns unique to colonial times.


Taking everything into account, the interior is impressive and well-lit thanks to a center courtyard with a steel spiral staircase giving access to the family home upstairs. As the most important feature of the house, it brings in natural daylight and increases ventilation, keeping the house cool in summer.



Plus, it creates a calm living space to relax and recharge after a busy day at work. Simply step out on the balcony to get some fresh air. From here, the spiral staircase continues on to the rooftop deck affording a wonderful panorama of Kampot. In a few words, it’s a renovation done right, one that breathes new life into a tired old home in an interesting way.
Architect: Bloom Architecture
You may also like…
Small Houses in Cambodia: Lack of Space Is Nicely Compensated for by a Cozy Garden Ambience
Amber Kampot: A Luxury Resort Captures the Beauty of Cambodia’s Shorelines
