/ Bangkok, Thailand /
/ Story: Kangsadan K. / English version: Bob Pitakwong /
/ Photographs: Nantiya June /
The cacophony of narrow shop front styles and crowded roads lined with street food stalls has attracted a young architect to a quaint old town on the bank of the Chao Phraya River. He found what he’s been looking for.

A shophouse exuding old world charm in Bangkok’s Talad Noi neighborhood had the potential to be renovated as a new home. In a short time, it transformed into a three-story living space with all features and options despite its small size. The old opaque façade was removed and replaced by a new exterior that’s light and airy. It’s thoughtfully devised to merge perfectly into the narratives of the area known for its richness in history and the ambience pleasantly reminiscent of an early time.



From a tired old place, the building made a thorough change in the form, resulting in a beautiful white home on a narrow lane that stands out from the crowd. There’s a lush garden bed in the front yard and trailing plants thriving among white slats that from the house façade. Together they harmonize in color and texture with original features of the house. It’s a great way to add instant curb appeal and welcome family and friends to the home. Past the steel panel fence painted white, the atmosphere is cozy and comfortable despite the house being located at the end of a narrow lane. Like the architect intended, the home is well-ventilated and well-lit by natural light, qualities that help banish stuffy rooms.



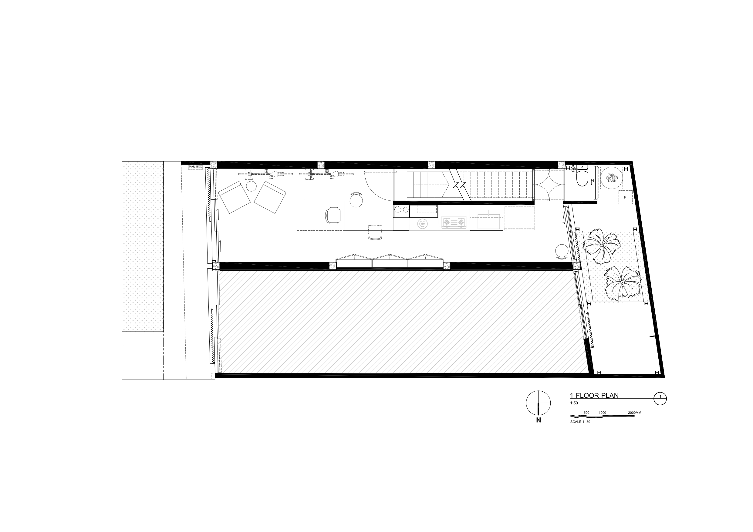
Take a look at the first floor. The waiting room up front is simple and practical with only a few pieces of furniture. It’s made colorful by peeling paint on old plaster walls left behind by the passage of time. On the whole, spatial arrangements are proportional to the narrow house plan, with the stairs and a kitchen sharing space designed to create an airflow pattern that eliminates odors through an opening at the rear.

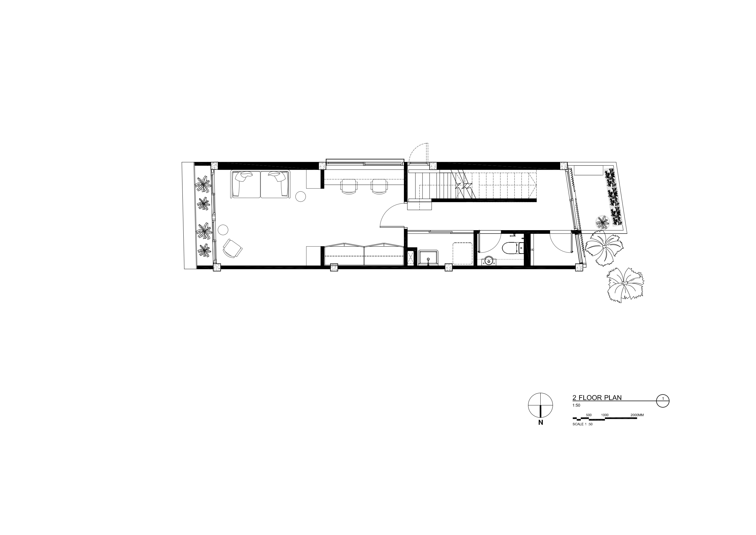
On the second floor, the plain hallway gives access to a cozy nook tucked away at the far end. It’s lined with functional storage spaces and a bathroom with a vessel sink countertop built flush against the wall to save floor space. The quiet corner provides an oasis of calm with upholstered seats and wooden furniture handcrafted by local artisans.



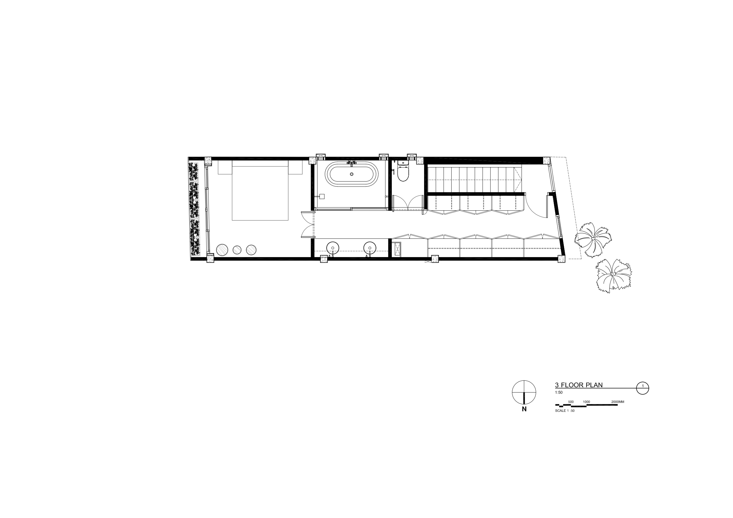
The third floor that previously was a rooftop deck has since been renovated as a bedroom that’s the right size for the compact house plan. It’s cozy and comfortable, thanks to a large glass wall and a balcony filled with green plants. The balcony is in turn enclosed by slatted wall panels that regulate the amounts of sunlight shining into the interior painted a cool-toned white.

Albeit restored for living at the present time, the home still retains the original support structure, intricate shapes and features exactly where they’ve always been. In essence, it’s about preserving the memorabilia in place because of their historical interest. They include peeling paint on old plaster walls that time forgot, wooden furniture handcrafted the old-fashioned way, even old plant containers scattered on every floor.

Together they bring back warm childhood memories plus it’s design that admits natural light and promotes good air circulation keeping the house cool and comfortable in summer. It’s the very picture of a house renovation done right, one that perfectly fits into the small space, yet it has the feel and functionality of a happier home.
Architects: Ekkachan Eiamananwattana, Phuwasit Buakhao
This house appears in the special Baan Lae Suan issue on the theme of “Cozy Living in Urban Homes” is out now. Design lovers, this one is for you. It’s the latest in the ongoing “ASEAN Tropical House Series”.
The exciting new bilingual edition (Thai-English) is a nice little collab between the Baan Lae Suan Press and its English language media arm Living ASEAN. It’s the coming together of ideas for dealing with the problem of limited space, turning site constraints into solutions. Precisely, it looks at problem solving techniques, ultimately creating small urban homes that are right within the context of Southeast Asia. In this issue, ten houses are chosen for their exemplary designs that inspire. It’s meant for architects, designers, and homeowners searching out new ideas for creating a living space that’s cozy and comfortable plus it blends in beautifully with the environment.
Available at bookstores nationwide. Or go online. Order now at https://www.naiin.com/product/detail/621643
For bulk international orders, contact livingasean.bkk@gmail.com

You may also like…
Tan Phu House: From a Stuffy, Narrow Shophouse to a Multi-Floor Home with Rooftop Garden
A Colonial Row House Renovated as Home-cum-Restaurant Exuding Vintage Charm