A Cube-Shaped Glass Block House Brings Joy to Aging Loved Ones

A Cube-Shaped Glass Block House Brings Joy to Aging Loved Ones

A Cube-Shaped Glass Block House Brings Joy to Aging Loved Ones

/ Prachinburi, Thailand /

/ Story: Sundaynightsofast / English version: Bob Pitakwong /

/ Photographs: Anupong Chaisukkasem, Soopakorn Srisakul /

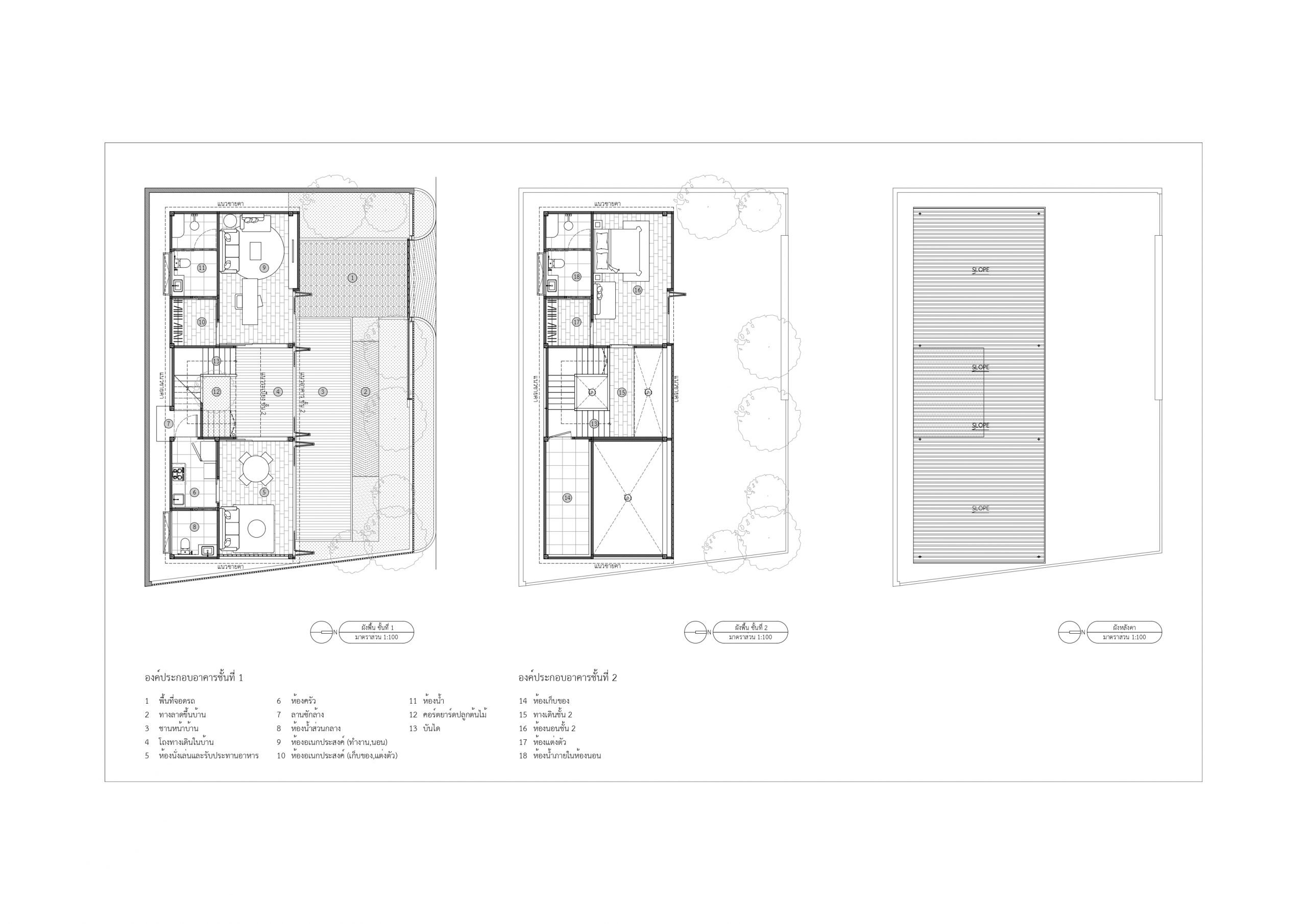
This cube-shaped house in Prachinburi, Thailand features a wide façade designed to improve its aesthetic appeal. Thanks to its small footprints and efficient rectangular layout, it prioritizes health and well-being for a life after retirement. There is an ample patio with a gentle ramp for easy wheelchair access in the future. Glass block walls and skylights above a double height room nearby bring natural light into the interior.

glass block
The front yard is hemmed in by white wooden fencing. Slender-leaved willows lined along the fence foster an atmosphere of calm away from the hubbub of the city. Together they create a dense, living privacy wall reducing noise and filtering out dust and smoke from passing cars.

Open floor plans work in tandem with sliding glass doors to create a bright and airy feel; meanwhile, connecting rooms within the building. It’s a nice way to avoid loneliness in old age. There’s a small courtyard enclosed by a privacy hedge that filters air pollution from streets. The ground floor has a multipurpose room that can convert into a sleeping chamber with an en suite accessible to wheelchairs. In all parts, it’s conducive to safety, comfort as well as physical and mental health.

Courtesy of S Pace Studio

A single-detached house located on Prachinburi’s main thoroughfare originates from a desire to create a sanctuary of well-being for aging loved ones. Planned for life after retirement, it’s out of the way, cozy and intimate, where time well spent is time spent with their children and grandchildren.

It’s the direct result of hard work overcoming the challenges of a roadside location and limited land size. By design, the new house respects city planning laws adhering to general plans and building standards, ultimately creating an improvement in living conditions after retirement.

glass block
A level surface provides critical safety and enhances aesthetic appeal. There are no raised edges that create barriers to wheelchair access. Bi-fold doors and sliding glass walls work effectively with a high-ceiling room creating a seamless transition between indoor and outdoor areas.

The house is built on a small, 60 tarang-wa plot of land (about 240 square meters) that’s common for residential use in Thailand. There’s a problem with the frontage of the land abutting a main thoroughfare. In this manner, the building is required by law to be situated at a distance of 12 meters from the center line of a primary public road.

Such restrictions leave only a 5 to 6 meters wide area of ground that can be designated for house building. The architect overcomes the challenges by creating a wide shallow-lot cube house positioned tightly against the rear property line. The result is a rectangular house plan with an ample multi-use terrace overlooking the front yard. Plus, there’s a wheelchair accessible ramp up front providing critical benefits for the elderly with mobility challenges.

glass block
A terrace at the entrance creates an inviting transition space with a wheelchair accessible ramp for future use. There are no raised edges that impede the movement of people with limited mobility. The loss of square footage required by law is nicely compensated by open-concept design that maximizes natural light flow making the small home feel larger.

The two-story house offers 130 square meters of living and usable space. It’s rich in features designed to make small spaces feel bigger, especially the front façade built of glass blocks that enhance privacy while maximizing natural light all day every day.

glass block
The sitting room with a dining space nearby is illuminated by a soft, diffused glow created by surrounding glass block walls. Paired with high-ceiling design, they enhance interior brightness and add architectural texture to the right-sized room.

As is the case with wide shallow-lot floor plans, house pillars act as structural dividers that partition spaces into three distinct functional zones. They fit perfectly into one large, open concept house plan promoting natural light and improving traffic flow.

The first zone to the left has a living area with dining space and functional tasks including the kitchen, powder room, and laundry area. There’s a multipurpose room on the second floor that visually connects upstairs to downstairs via a sliding wall system. The room that provides storage spaces can convert to a bedroom for visiting houseguests, or workspace if need be.

The second zone or mid-section contains a stairwell and a double-height entrance foyer that makes the home feel airy and bright. Its surrounding walls are made of glass blocks while an openable skylight enhances natural lighting and dissipates indoor heat by utilizing the chimney effect.

At the same time, decorating with plants blurs the lines between indoor and outdoor living, providing significant health and aesthetic benefits. In essence, it’s about making use of fresh air, sunshine and the greenery of the landscape to boost overall well-being.

The middle section serves as the functional heart designed to bring the outdoors in to enhance well-being in the home. Like so, the stairwell is adorned with a mini interior courtyard that benefits from natural light and seasonal southerly winds.

The third zone is on the right-hand side containing a multi-use room on the first floor and the owner’s bedroom on the second. The downstairs room is a versatile space by design, capable of being adapted to many functions including a bedroom in the future when climbing stairs become more difficult. When the time comes, built-in storage spaces in the room can convert to wardrobes in which clothes may be hung or stored. Plus, it has a wheelchair accessible bathroom en-suite while the doorway without a threshold provides a seamless transition for the safety of aging loved ones.

glass block
The bedroom situated upstairs feel light and airy. There’s good reason to choose a movable bed for aging loved ones. In the future when climbing stairs becomes unsafe, it may be necessary to move the bedroom downstairs.

What’s more. Thoughtful landscaping plays a central role in improving well-being despite being a small house. Adding greenery to the front yard landscape provides many environmental benefits, including reducing noise and filtering dust and smoke from passing cars. In this particular instance, thriving willow trees with lance-shaped leaves create a dense, living privacy wall. From an architectural point of view, the strategically placed trees soften the sharpness of geometric cube-shaped architecture resulting in a welcoming and balanced aesthetic.

All things considered, it’s a cohesive, multifunctional home that flows, creating visual continuity thanks to bi-fold doors and sliding glass walls that maximize natural light making the interior feel airy and bright. The well-thought-out floor plan ensures smooth and safe movement from indoor rooms to the terrace overlooking the front yard.

glass block
The house’s massive facade is built of glass blocks. To ensure a rigid and safe structure, steel reinforcement strips, aka flat bars, are installed at intervals, every two meters precisely. For strength and durability, they work in tandem with adhesive used for bonding glass blocks together.

There isn’t a small, poorly designed room that increases isolation for older adults. Quite the opposite, it’s a home that feels like a shared communal, social environment when children and grandchildren visit — a private sanctuary that promotes the physical and mental well-being of aging loved ones.


Architects: S Pace Studio


You may also like…

An Urban Townhouse Renovated for the Comfort of an Aging Parent

A Country Style Home Office Set amid an Urban Environment

About the Author

X